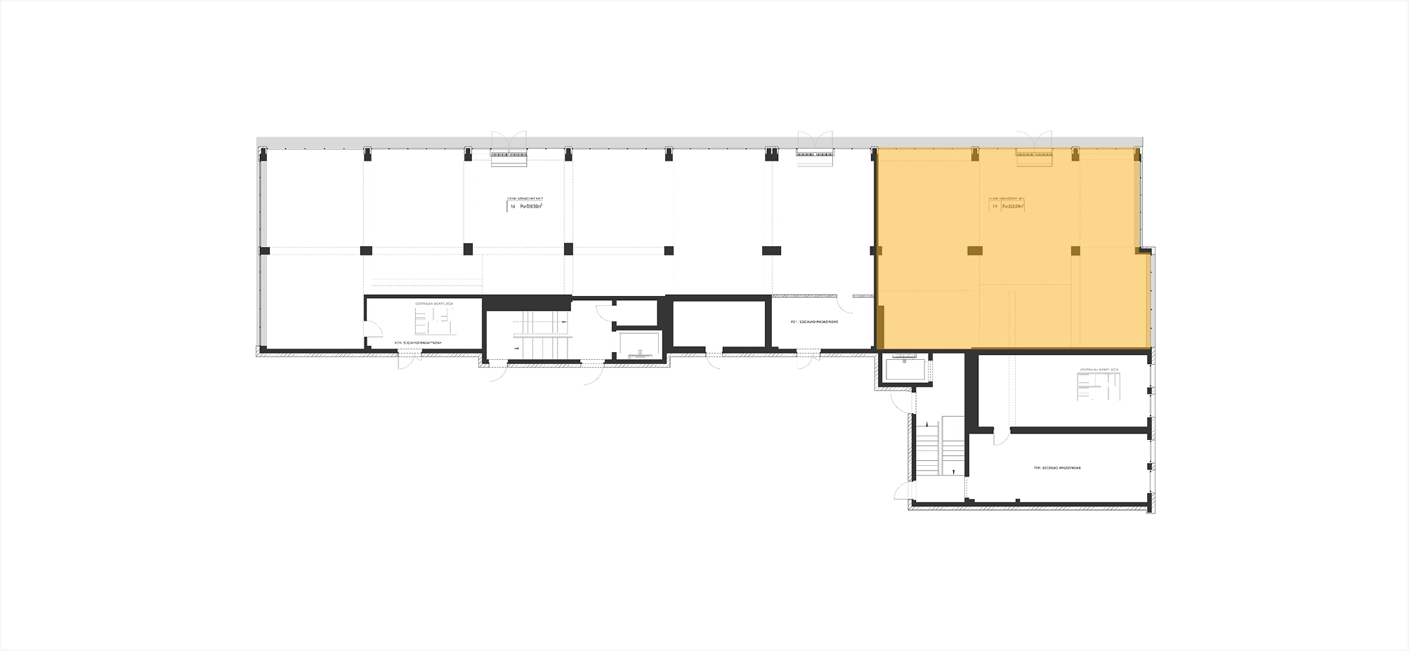
Lokal usługowy Lok. Usł 1.9

  • Powierzchnia: 262 m2
  • Liczba pokoi: 1
  • Balkon: -
  • Piętro: Parter
  • Kondygnacje: Jednopoziomowe
  • Status: Sprzedane
Pobierz kartę PDF Prospekt informaycyjny
Zestawienie pomieszczeń
Lokal usługowy 1.9
  1. 1 - Powierzchnia całkowita 262,00 m2
Lokalizacja lokalu
na rzucie piętra
background

Serdecznie zapraszamy do kontaktu z naszym biurem sprzedaży.

Dane kontaktowe
 

    Akceptuję politykę prywatności