Mieszkanie 2.17

Cena
286 080,00 zł Cena lokalu (brutto)
7 450,00 zł brutto Cena za 1m2 (brutto)
Zobacz historię zmian ceny
  • Powierzchnia: 38.40 m2
  • Liczba pokoi: 1
  • Balkon: -
  • Piętro: I Piętro
  • Kondygnacje: Jednopoziomowe
  • Status: W sprzedaży
Pobierz kartę PDF Prospekt informaycyjny
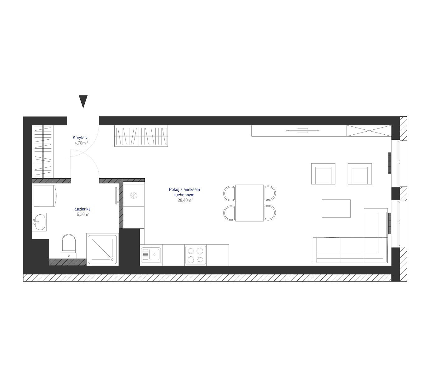
Zestawienie pomieszczeń
Mieszkanie 2.17
  1. 1 - Komunikacja 4,70 m2
  2. 2 - Łazienka 5,30 m2
  3. 3 - Salon z aneksem kuchennym 28,40 m2
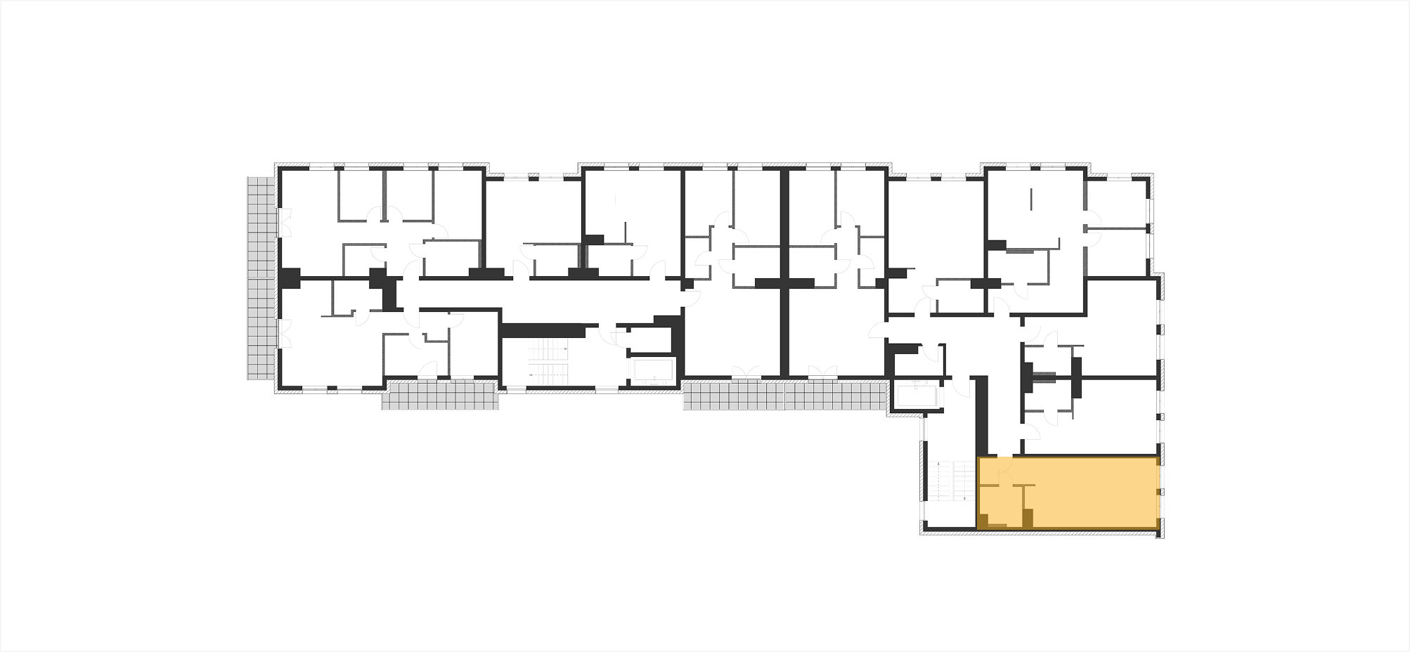
Lokalizacja mieszkania
na rzucie piętra
background

Serdecznie zapraszamy do kontaktu z naszym biurem sprzedaży.

Dane kontaktowe
 

    Akceptuję politykę prywatności