O inwestycji
Oferta
Lokalizacja
Generalny wykonawca
tel. 698 770 977
Skontaktuj się
Generated with Avocode.
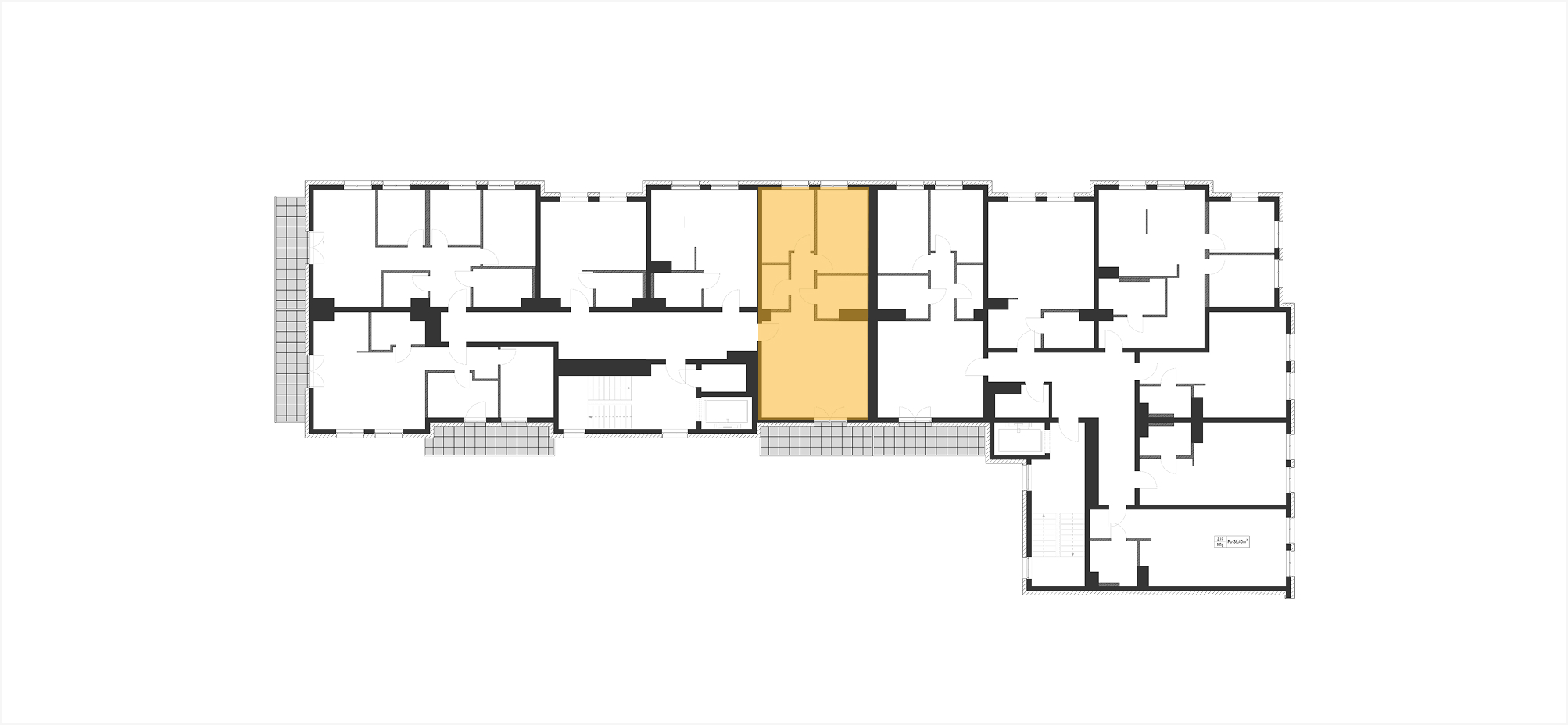
Mieszkanie 2.8
Cena
467 680,50 zł
Cena lokalu (brutto)
7 717,50 zł brutto
Cena za 1m2 (brutto)
Zobacz historię zmian ceny
Powierzchnia:
60.60 m
2
Liczba pokoi:
3 + garderoba
Balkon:
8.50
Piętro:
I Piętro
Kondygnacje:
Jednopoziomowe
Status:
W sprzedaży
Zaproponuj swoją cenę
Pobierz kartę PDF
Prospekt informaycyjny
Zestawienie pomieszczeń
Mieszkanie nr 2.8
1 - Komunikacja
4,70 m
2
2 - Łazienka
5,10 m
2
3 - Salon z aneksem kuchennym
27,10 m
2
4 - Pokój 1
9,40 m
2
5 - Pokój 2
11,10 m
2
6 - Garderoba
3,20 m
2
7 - Balkon
8,50 m
2
Lokalizacja mieszkania
na rzucie piętra
Serdecznie zapraszamy do kontaktu z naszym biurem sprzedaży.
Dane kontaktowe
tel.
698 770 977
kontakt@osiedlebracka.pl
Akceptuję politykę prywatności
Wyślij wiadomość
×