O inwestycji
Oferta
Lokalizacja
Generalny wykonawca
tel. 698 770 977
Skontaktuj się
Generated with Avocode.
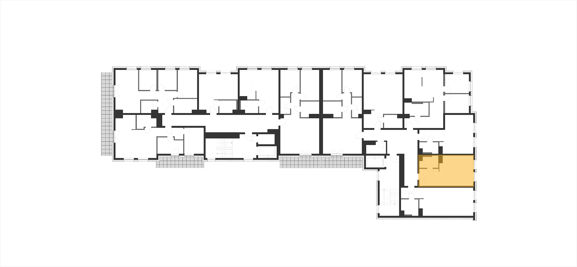
Mieszkanie 3.16
Cena
235 620,00 zł
Cena lokalu (brutto)
7 700,00 zł brutto
Cena za 1m2 (brutto)
Zobacz historię zmian ceny
Powierzchnia:
30.60 m
2
Liczba pokoi:
1
Balkon:
-
Piętro:
II Piętro
Kondygnacje:
Jednopoziomowe
Status:
W sprzedaży
Zaproponuj swoją cenę
Pobierz kartę PDF
Prospekt informaycyjny
Zestawienie pomieszczeń
Mieszkanie 3.16
1 - Komunikacja
6,60 m
2
2 - Łazienka
4,20 m
2
3 - Salon z aneksem kuchennym
19,80 m
2
Lokalizacja mieszkania
na rzucie piętra
Serdecznie zapraszamy do kontaktu z naszym biurem sprzedaży.
Dane kontaktowe
tel.
698 770 977
kontakt@osiedlebracka.pl
Akceptuję politykę prywatności
Wyślij wiadomość
×