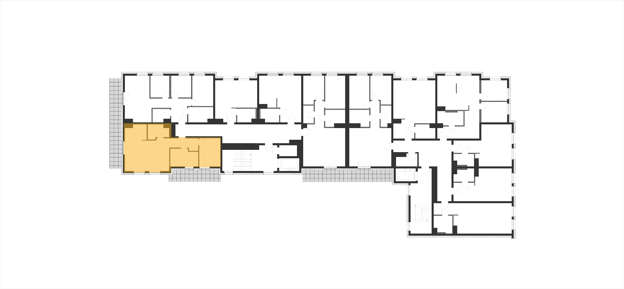
Mieszkanie 3.4

Cena
Zapytaj
  • Powierzchnia: 55.90 m2
  • Liczba pokoi: 3
  • Balkon: 8.50 + 9.50
  • Piętro: II Piętro
  • Kondygnacje: Jednopoziomowe
  • Status: Zarezerwowane
Pobierz kartę PDF Prospekt informaycyjny
Zestawienie pomieszczeń
Mieszkanie 3.4
  1. 1 - Komunikacja 5,10 m2
  2. 2 - Łazienka 4,40 m2
  3. 3 - Salon z aneksem kuchennym 28,40 m2
  4. 4 - Pokój 1 8,00 m2
  5. 5 - Pokój 2 10,00 m2
  6. 6 - Balkon 1 8,50 m2
  7. 7 - Balkon 2 9,50 m2
Lokalizacja mieszkania
na rzucie piętra
background

Serdecznie zapraszamy do kontaktu z naszym biurem sprzedaży.

Dane kontaktowe
 

    Akceptuję politykę prywatności