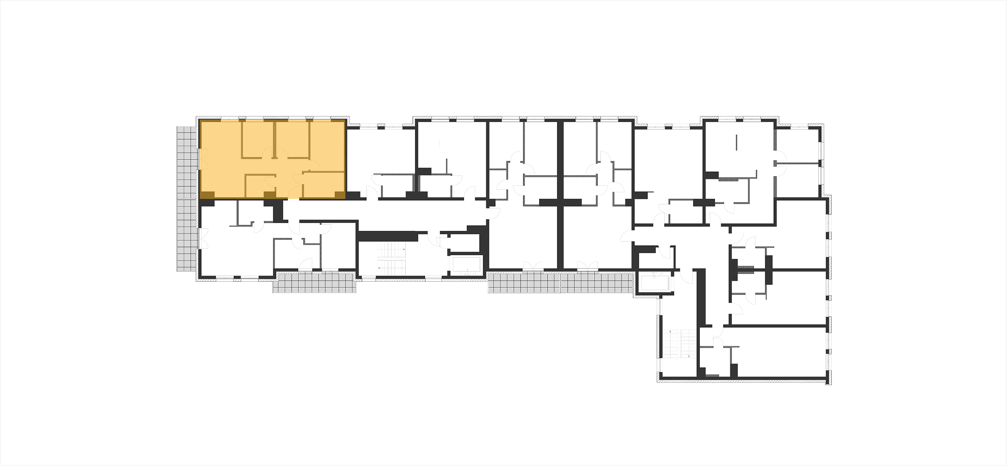
Mieszkanie 3.5

Cena
Zapytaj
  • Powierzchnia: 64.00 m2
  • Liczba pokoi: 4 + garderoba
  • Balkon: 8.50
  • Piętro: II Piętro
  • Kondygnacje: Jednopoziomowe
  • Status: Zarezerwowane
Pobierz kartę PDF Prospekt informaycyjny
Zestawienie pomieszczeń
Mieszkanie 3.5
  1. 1 - Komunikacja 9,40 m2
  2. 2 - Łazienka 5,60 m2
  3. 3 - Salon z aneksem kuchennym 19,70 m2
  4. 4 - Pokój 1 7,00 m2
  5. 5 - Pokój 2 7,50 m2
  6. 6 - Pokój 3 10,70 m2
  7. 7 - Garderoba 10,70 m2
  8. 8 - Balkon 8,50 m2
Lokalizacja mieszkania
na rzucie piętra
background

Serdecznie zapraszamy do kontaktu z naszym biurem sprzedaży.

Dane kontaktowe
 

    Akceptuję politykę prywatności