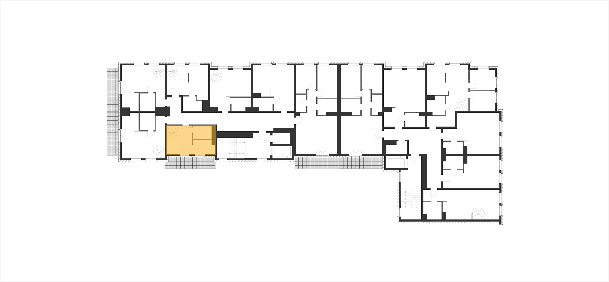
Mieszkanie 4.4

Cena
Zapytaj
  • Powierzchnia: 42.70 m2
  • Liczba pokoi: 2 + garderoba
  • Balkon: 9.50
  • Piętro: III Piętro
  • Kondygnacje: Dwupoziomowe
  • Status: Zarezerwowane
Pobierz kartę PDF Prospekt informaycyjny
Zestawienie pomieszczeń
Mieszkanie 4.4
  1. 1 - Komunikacja 2,30 m2
  2. 2 - Łazienka 3,60 m2
  3. 3 - Salon z aneksem kuchennym 15,70 m2
  4. 4 - Antresola 21,10 m2
  5. 5 - Balkon 9,50 m2
Lokalizacja mieszkania
na rzucie piętra
background

Serdecznie zapraszamy do kontaktu z naszym biurem sprzedaży.

Dane kontaktowe
 

    Akceptuję politykę prywatności