O inwestycji
Oferta
Lokalizacja
Generalny wykonawca
tel. 698 770 977
Skontaktuj się
Generated with Avocode.
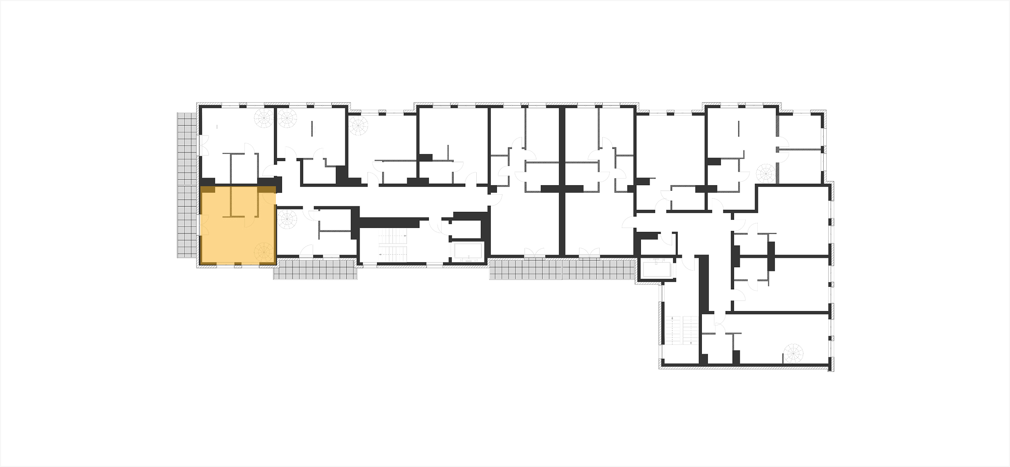
Mieszkanie 4.5
Cena
457 234,80 zł
Cena lokalu (brutto)
8 107,00 zł brutto
Cena za 1m2 (brutto)
Zobacz historię zmian ceny
Powierzchnia:
56.40 m
2
Liczba pokoi:
2
Balkon:
8.50
Piętro:
III Piętro
Kondygnacje:
Dwupoziomowe
Status:
W sprzedaży
Zaproponuj swoją cenę
Pobierz kartę PDF
Prospekt informaycyjny
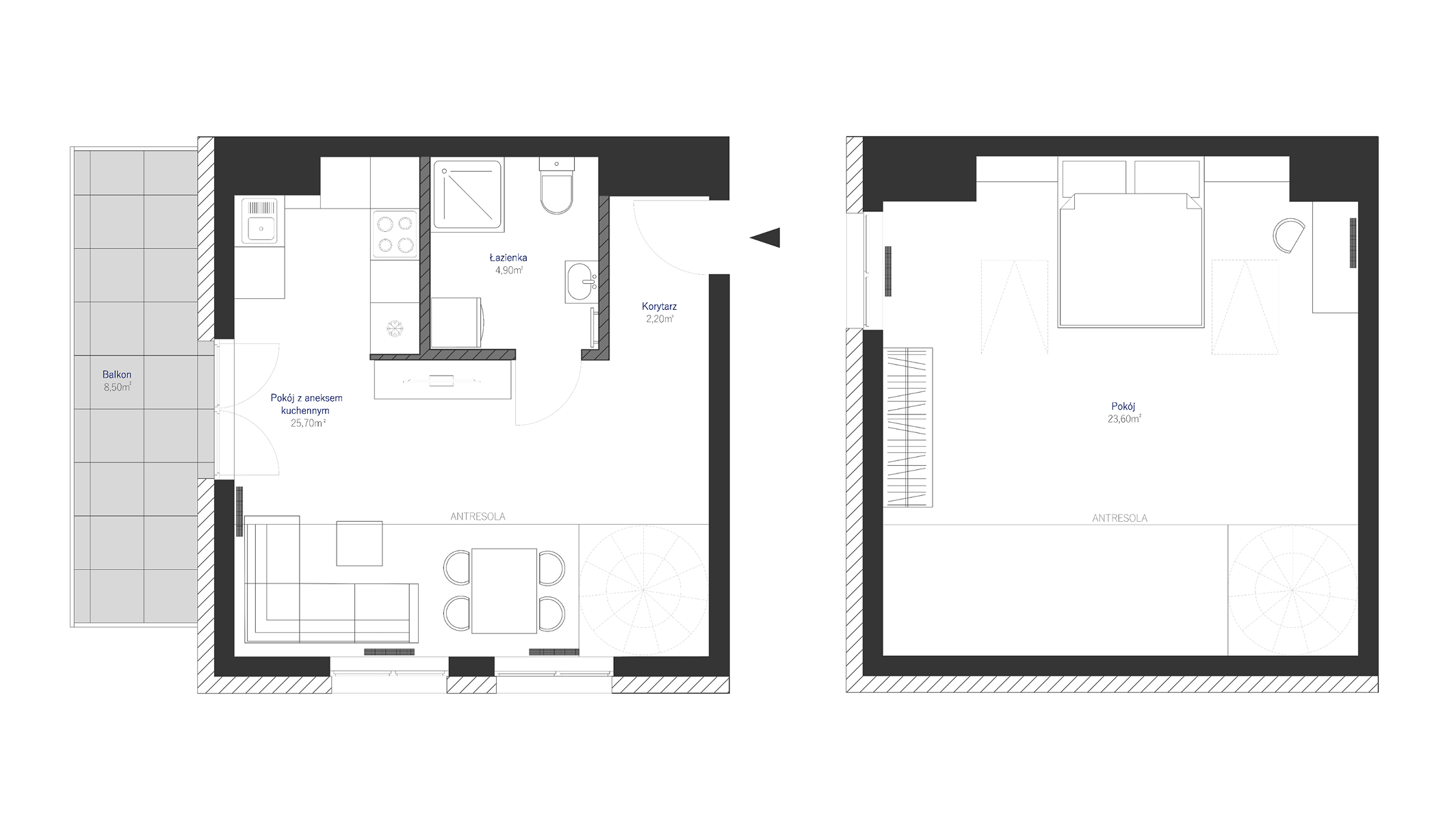
Zestawienie pomieszczeń
Mieszkanie 4.5
1 - Komunikacja
2,20 m
2
2 - Łazienka
4,90 m
2
3 - Salon z aneksem kuchennym
25,70 m
2
4 - Antresola
23,60 m
2
5 - Balkon
8,50 m
2
Lokalizacja mieszkania
na rzucie piętra
Serdecznie zapraszamy do kontaktu z naszym biurem sprzedaży.
Dane kontaktowe
tel.
698 770 977
kontakt@osiedlebracka.pl
Akceptuję politykę prywatności
Wyślij wiadomość
×