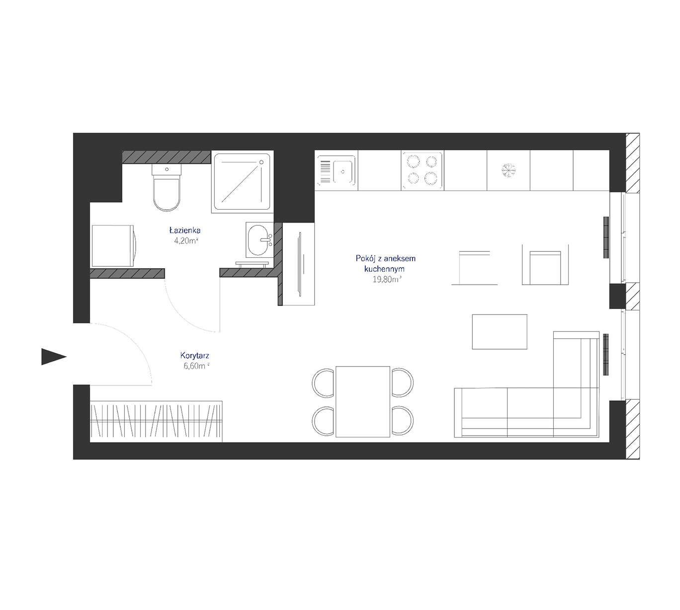
Mieszkanie 5.12

Cena
235 620,00 zł Cena lokalu (brutto)
7 700,00 zł brutto Cena za 1m2 (brutto)
Zobacz historię zmian ceny
  • Powierzchnia: 30.60 m2
  • Liczba pokoi: 1
  • Balkon: -
  • Piętro: IV Piętro
  • Kondygnacje: Jednopoziomowe
  • Status: W sprzedaży
Pobierz kartę PDF Prospekt informaycyjny
Zestawienie pomieszczeń
Mieszkanie 5.12
  1. 1 - Komunikacja 6,60 m2
  2. 2 - Łazienka 4,20 m2
  3. 3 - Salon z aneksem kuchennym 19,80 m2
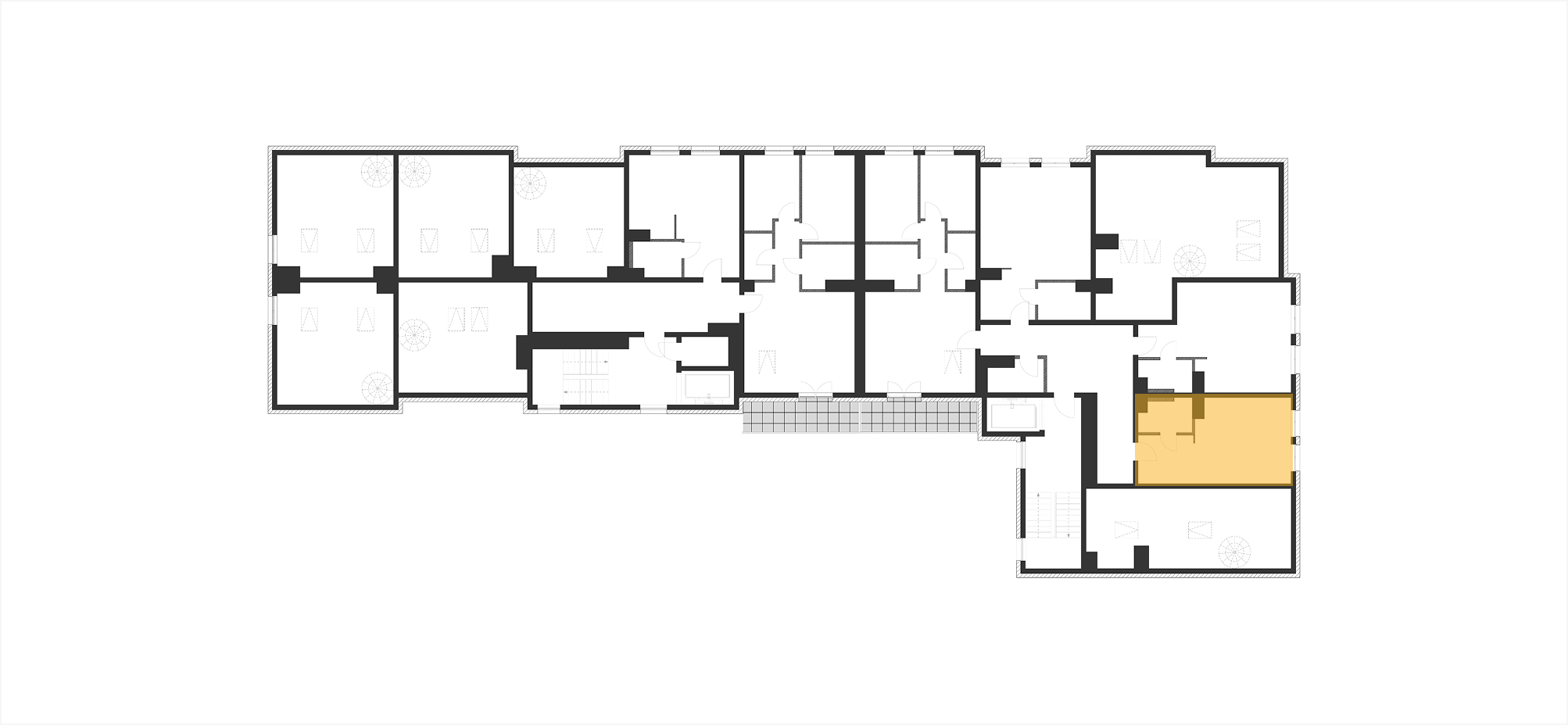
Lokalizacja mieszkania
na rzucie piętra
background

Serdecznie zapraszamy do kontaktu z naszym biurem sprzedaży.

Dane kontaktowe
 

    Akceptuję politykę prywatności