O inwestycji
Oferta
Lokalizacja
Generalny wykonawca
tel. 698 770 977
Skontaktuj się
Generated with Avocode.
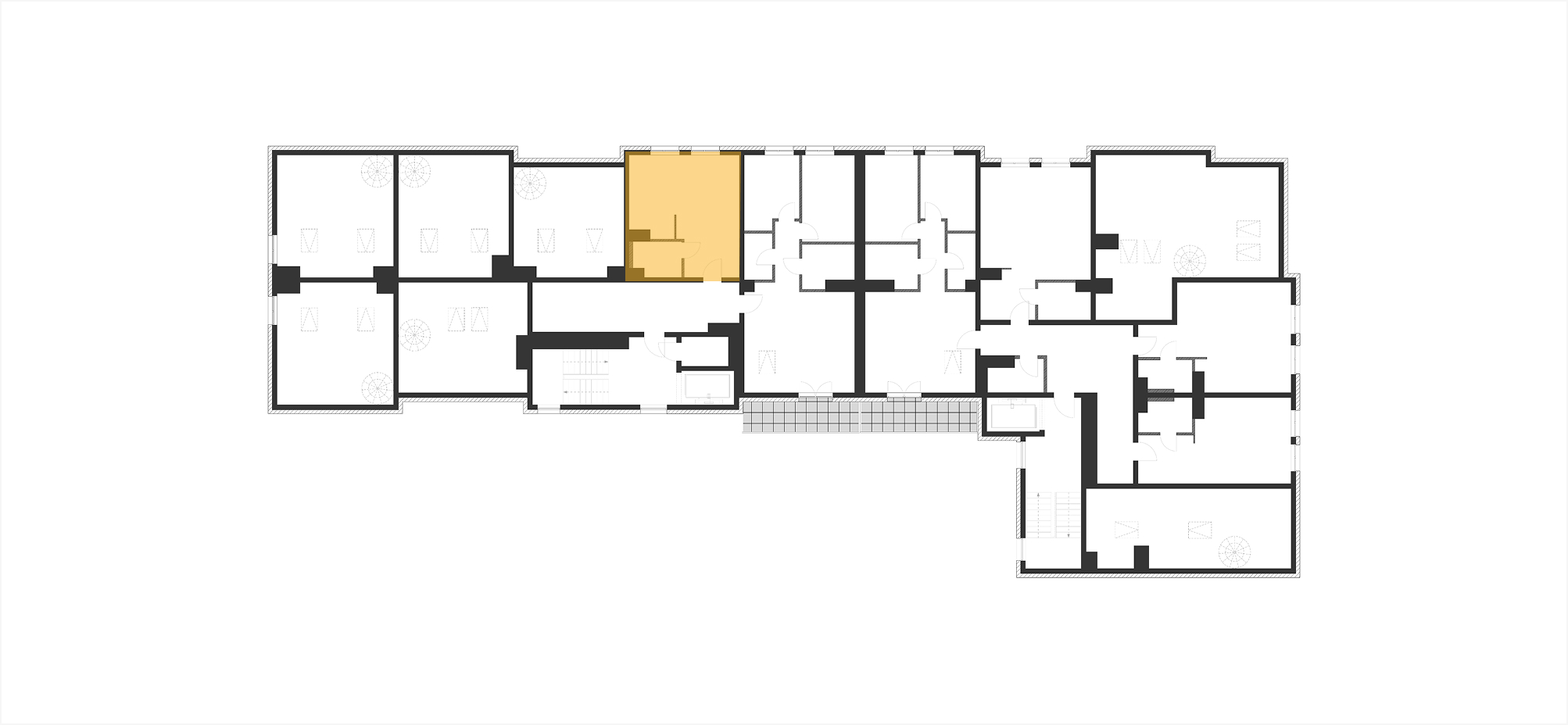
Mieszkanie 5.4
Cena
Zapytaj
Powierzchnia:
31.40 m
2
Liczba pokoi:
1
Balkon:
-
Piętro:
IV Piętro
Kondygnacje:
Jednopoziomowe
Status:
Zarezerwowane
Zaproponuj swoją cenę
Pobierz kartę PDF
Prospekt informaycyjny
Zestawienie pomieszczeń
Mieszkanie 5.4
1 - Komunikacja
3,20 m
2
2 - Łazienka
4,20 m
2
3 - Salon z aneksem kuchennym
24,00 m
2
Lokalizacja mieszkania
na rzucie piętra
Serdecznie zapraszamy do kontaktu z naszym biurem sprzedaży.
Dane kontaktowe
tel.
698 770 977
kontakt@osiedlebracka.pl
Akceptuję politykę prywatności
Wyślij wiadomość
×