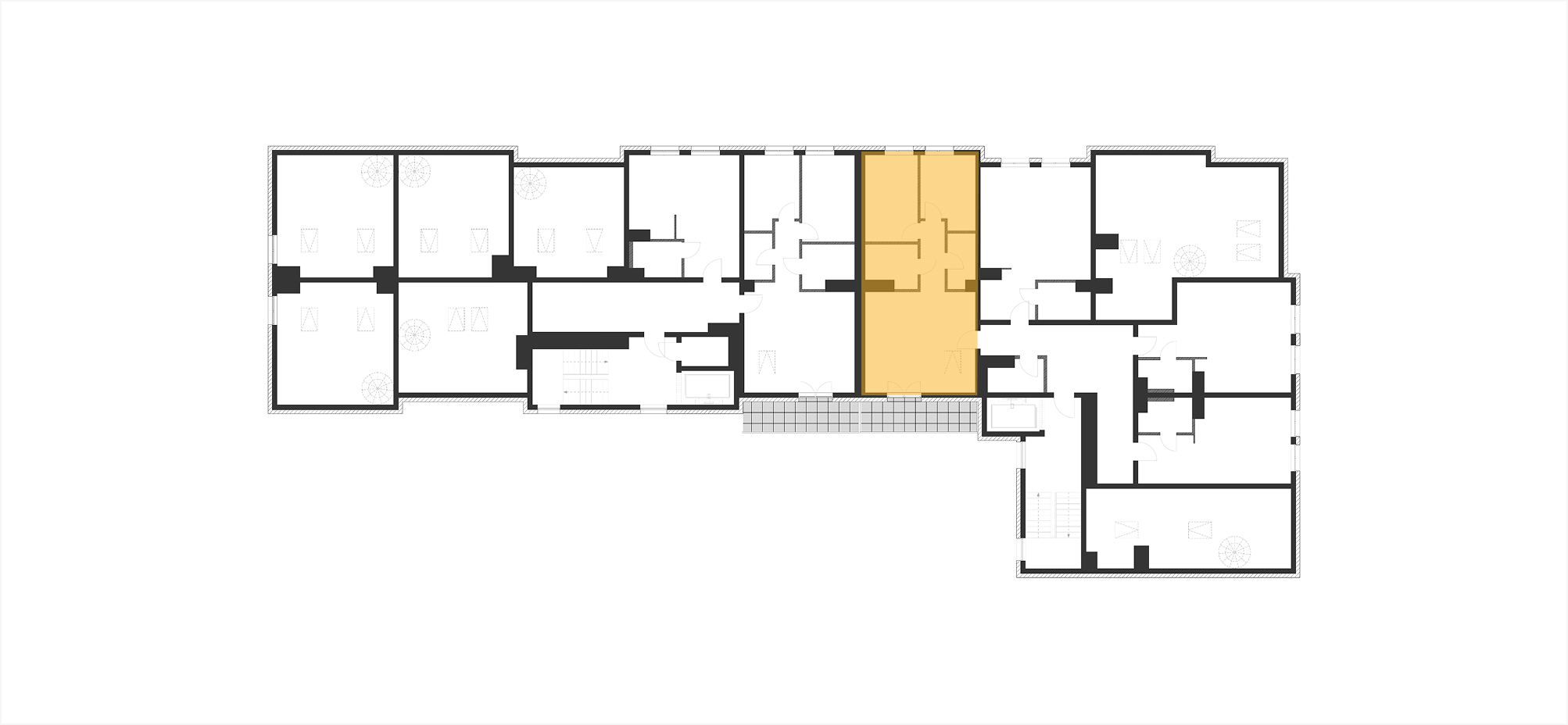
Mieszkanie 5.9

Cena
445 737,60 zł Cena lokalu (brutto)
7 738,50 zł brutto Cena za 1m2 (brutto)
Zobacz historię zmian ceny
  • Powierzchnia: 57.60 m2
  • Liczba pokoi: 3 + garderoba
  • Balkon: 8.50
  • Piętro: IV Piętro
  • Kondygnacje: Jednopoziomowe
  • Status: W sprzedaży
Pobierz kartę PDF Prospekt informaycyjny
Zestawienie pomieszczeń
Mieszkanie 5.9
  1. 1 - Komunikacja 4,20 m2
  2. 2 - Łazienka 5,10 m2
  3. 3 - Salon z aneksem kuchennym 24,20 m2
  4. 4 - Pokój 1 11,10 m2
  5. 5 - Pokój 2 9,40 m2
  6. 6 - Garderoba 3,60 m2
  7. 7 - Balkon 8,50 m2
Lokalizacja mieszkania
na rzucie piętra
background

Serdecznie zapraszamy do kontaktu z naszym biurem sprzedaży.

Dane kontaktowe
 

    Akceptuję politykę prywatności